Leave a Message

Thank you for your message. We will be in touch with you shortly.

See all photos
Ronit Abraham

944 E 45th Street

$700,000 944 E 45th Street, Brooklyn, NY 11203
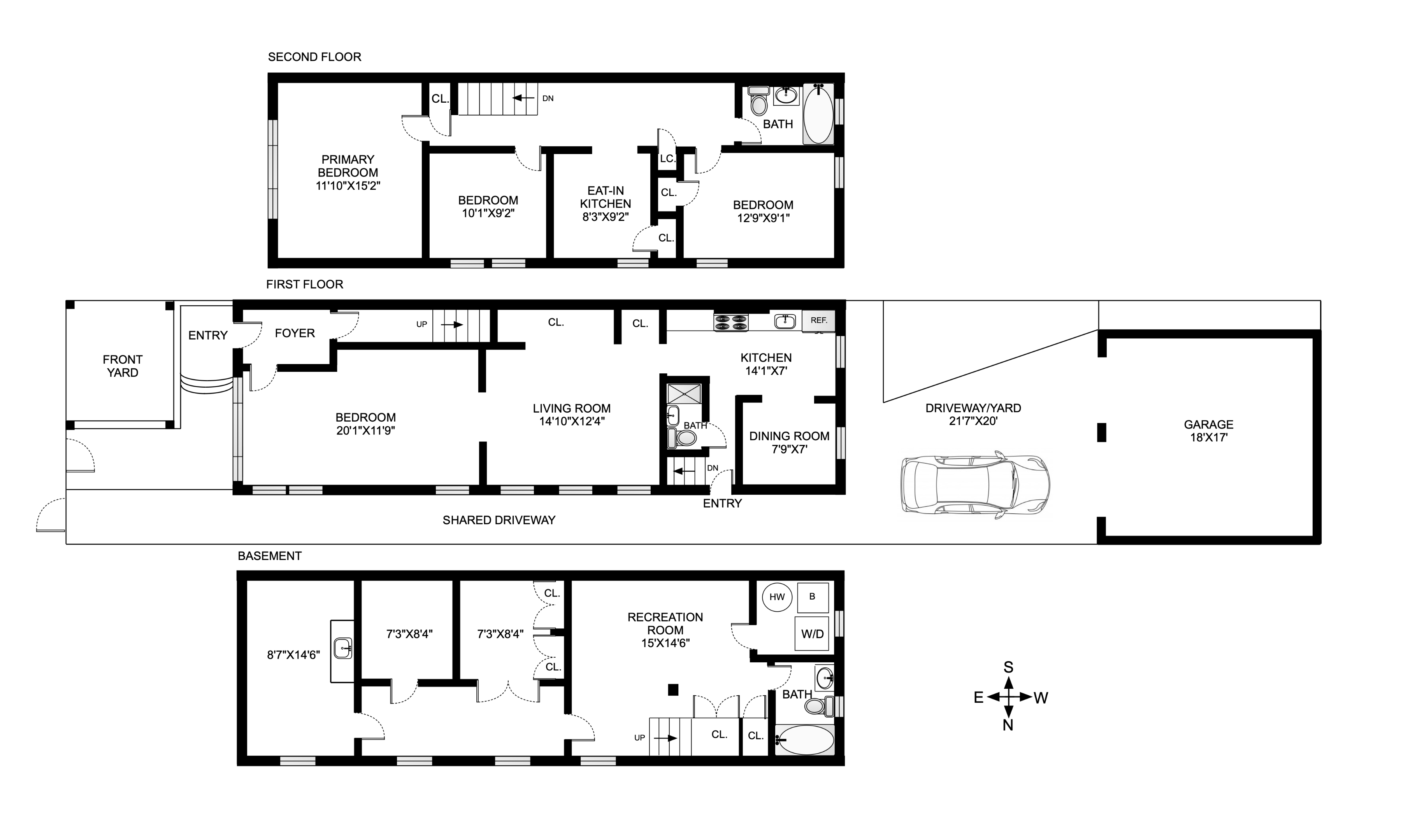
Welcome to this charming semi-detached two-family home in Flatbush, tucked away on a picturesque block with lots of friendly neighbors. With a shared driveway and a garage in the back, this property offers both convenience and comfort.

The home sits on a 20-foot wide lot measuring 16 x 47, making it an ideal opportunity for buyers seeking space and versatility. This two family home is currently being used as a single family and has the kitchen on the first floor. The second floor has plumbing and gas connections in place for a kitchen, though it is not currently outfitted as one. The English basement enjoys natural light and features a wet bar, creating the perfect bonus space for entertaining or relaxing.

The home needs some TLC but the major updates have already been taken care of, including a new roof put in the last two years. The hot water heater, and boiler were also installed within the last two years. Another standout feature: super-low taxes of just $6,237 per year, or about $520 a month.

Whether you're looking for an income-producing investment or a flexible home for extended family, this semi-detached residence delivers.
  • Pending
    Status
  • 4
    Bedrooms
  • 3
    Bathrooms
  • 1925
    Year Built
  • 2,250 Sq.Ft.
    Living Area

Features & Amenities

Area & Lot

  • Status: Pending
  • Living Space: 2,250 Sq.Ft.
  • Total Area: 2,250 Sq.Ft.
  • MLS® ID: RLS20046967
  • Type: Multi-Family
  • Year Built: 1925

Interior

  • Total Bedrooms: 4
  • Total Bathrooms: 3
  • Full Bathrooms: 3
  • Laundry Room: See Remarks
  • Flooring: Hardwood
  • Appliances: Dryer, Washer
  • Other Interior Features: High Ceilings

Exterior & Building

  • Stories: 2
  • Parking: Garage
  • Other Exterior Features: Private Outdoor Space Over 60 Sqft

Financial

  • Sales Price: $700,000
  • Real Estate Tax: $6,240/yr

944 E 45th Street

Work with Ronit

We're here to help you! Whether you are looking to buy or sell a property or have questions on how to negotiate a better deal? We provide one-on-one support in figuring out the current market value of your property and crafting a competitive offer.
Let's Connect
Follow Ronit On Instagram